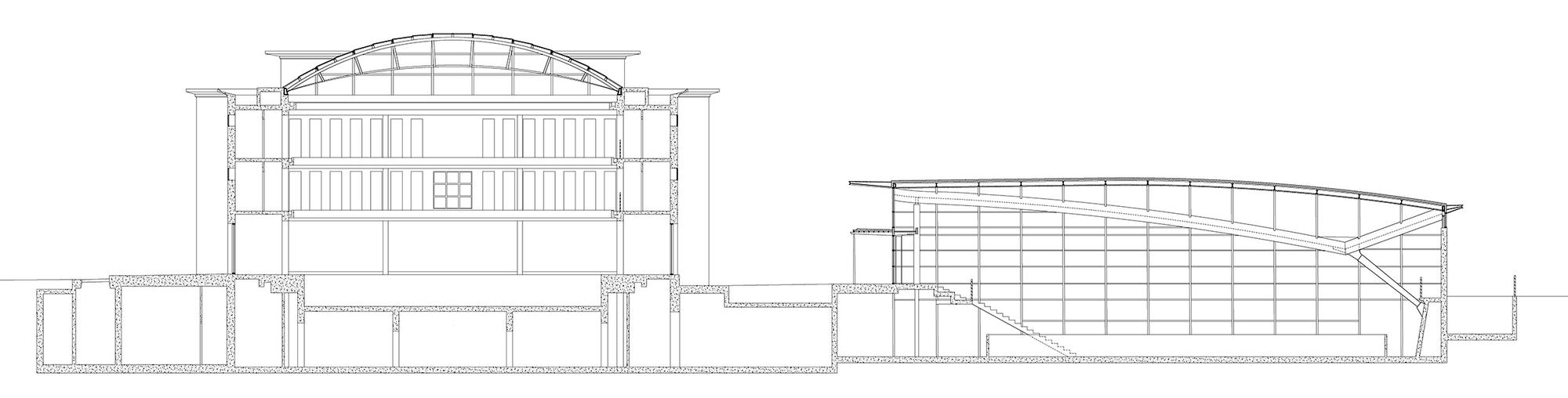
Il s'agit de la piscine-patinoire Pailleron, un projet de l'architecte Marc Mimram ; moitié rhéabilitation, moitié construction neuve.

# Coupe détail sur shed en "palme" de la patinoire

# Coupe détail transversale sur verrière piscine et ventilation

# Coupe détail longitudinale sur verrière piscine et fermes